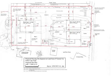
Moovd Online Property Auctions are delighted to offer For Sale via Option A – Unconditional Online Auction on 30th October 2025, this large plot of land with planning permission for three detached four-bedroom properties.
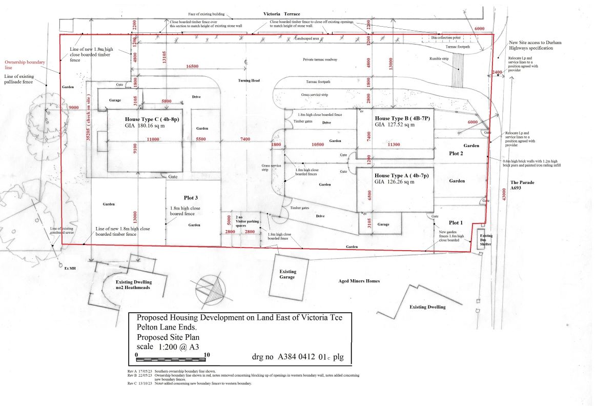
The land lies to the rear of Victoria Terrace on the outskirts of the popular villages of Newfield and Pelton Fell within Chester Le Street, Co Durham. Each property is on a substantial plot and would be the perfect project for a local builder or developer. Plans can be found under planning reference DM/23/00859/FPA.
For further details or to view the plot, please contact Moovd Online Property Auctions.
Buyer's Premium £2,500 + VAT (£3,000 Inc VAT).
EPC rating N/a.
For more information, please contact Moovd directly.
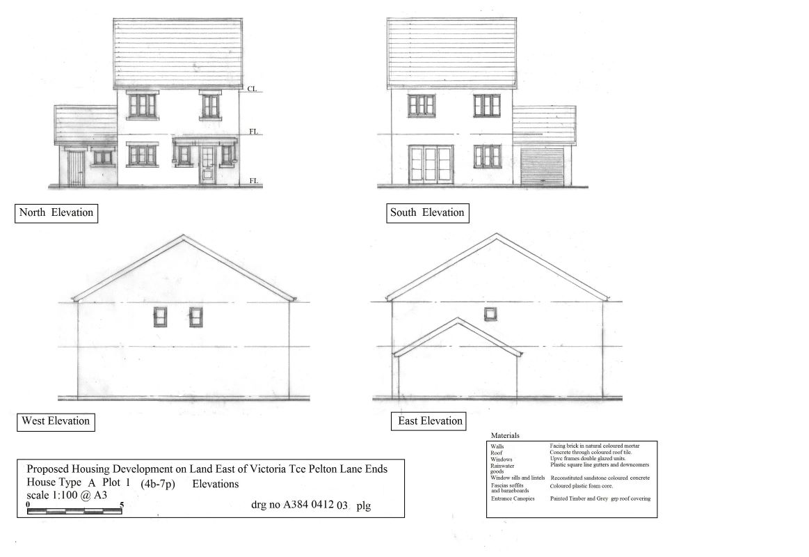
Plot 1 - Type A - Four Bedroom Detached.
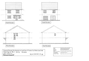
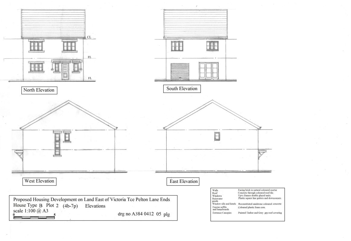
Plot 2 - Type B - Four Bedroom Detached.
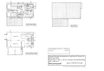
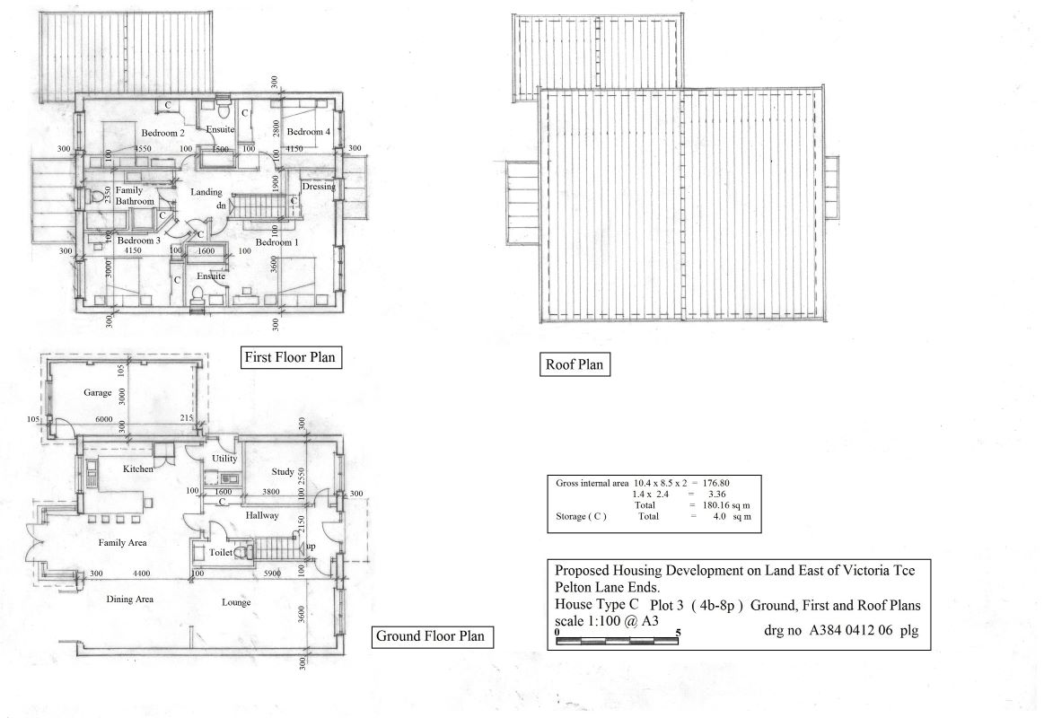
Plot 3 - Type C - Four Bedroom Detached.
Moovd may work in partnership with marketing agents on our Online Auction Lots and act as 'The Auctioneer', throughout the sale process.
Option A - Online Unconditional Auction:
The above property is offered for sale by Online Unconditional Auction (Traditional auction). With this method of sale, both seller and buyer are required to complete the transaction, within the timeframe stated in the General Conditions and Special Conditions of Sale. It is Moovd’s policy that all buyers are without fail AML checked at point of Registration. The buyer is then required to make a NON- REFUNDABLE Administration Fee payment amounting to £3,000.00 Inc VAT (£2,500 + VAT) (This fee IS PAID in addition to the purchase price and will be chargeable and calculated towards stamp duty). A deposit payment amounting to 10% of the purchase price (or a minimum of £5,000) is also required from the successful buyer. The seller may charge additional fees payable upon completion. If applicable, such fees are detailed within the Special Conditions of Sale. Buyers are deemed to bid in full knowledge of this.
* Generally speaking Guide Prices are provided as an indication of each seller's minimum expectation, i.e. 'The Reserve'. They are not necessarily figures which a property will sell for and may change at any time prior to the auction. Virtually every property will be offered subject to a Reserve (a figure below which the Auctioneer cannot sell the property during the auction) which we expect will be set within the Guide Range or no more than 10% above a single figure Guide.
Submit an enquiry and someone will be in contact shortly.
By setting a proxy bid, the system will automatically bid on your behalf to maintain your position as the highest bidder, up to your proxy bid amount. If you are outbid, you will be notified via email so you can opt to increase your bid if you so choose.
If two of more users place identical bids, the bid that was placed first takes precedence, and this includes proxy bids.
Another bidder placed an automatic proxy bid greater or equal to the bid you have just placed. You will need to bid again to stand a chance of winning.