We are delighted to offer For Sale via Option A – Unconditional Online Auction on 2nd of October 2025 at a Guide Price of £110,000+ this spacious and well planned three-bedroom, semi-detached home. Located in a quiet, residential cul-de-sac in the popular village of Sacriston. With a realistic Guide Price to reflect some internal updating in places, this attractive property is sure to prove very popular to a range of home buyers, including the first-time buyer.
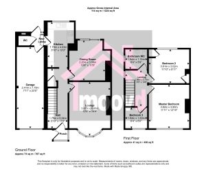
The property maintains many original features and charm, briefly comprising entrance porch, central hallway with staircase to first floor, lounge with feature Bay window and open fire, dining room with sliding patio door to rear garden, fitted kitchen, rear lobby and WC. To first floor is a generous sized landing and three well portioned bedrooms and a smartly finished family bathroom WC. Externally is a driveway leading to an attached garage and gardens to front and rear.
Located on the outskirts of Sacriston with a range of local amenities, including both Primary and Secondary schools, a Tesco Express, Post Office, and butchers to name a few. Only a few miles from Durham City, this would also be the ideal base for a commuter. With endless beautiful countryside walks on the doorstep, there are so many benefits to this superb property and an internal viewing is considered a must. Viewings strictly by appointment only.
EPC rating D.
For more information, please contact Moovd directly.
Porch -
Hall -
Lounge - 4.80m x 3.67m (15'8" x 12'0") -
Dining Room - 3.59m x 3.20m (11'9" x 10'5") -
Kitchen - 4.03m x 1.79m (13'2" x 5'10") -
Rear Lobby -
Wc -
Landing -
Master Bedroom - 3.90m x 3.62m (12'9" x 11'10") -
Bedroom 2 - 3.02m x 3.61m (9'10" x 11'10") -
Bedroom 3 - 1.83m x 1.94m (6'0" x 6'4") -
Bathroom Wc -
Garage - 7.15m x 2.41m (23'5" x 7'10") -
External -
Moovd may work in partnership with marketing agents on our Online Auction Lots and act as 'The Auctioneer', throughout the sale process.
Option A - Online Unconditional Auction:
The above property is offered for sale by Online Unconditional Auction (Traditional auction). With this method of sale, both seller and buyer are required to complete the transaction, within the timeframe stated in the General Conditions and Special Conditions of Sale. It is Moovd’s policy that all buyers are without fail AML checked at point of Registration. The buyer is then required to make a NON- REFUNDABLE Administration Fee payment amounting to £3,000.00 Inc VAT (£2,500 + VAT) (This fee IS PAID in addition to the purchase price and will be chargeable and calculated towards stamp duty). A deposit payment amounting to 10% of the purchase price (or a minimum of £5,000) is also required from the successful buyer. The seller may charge additional fees payable upon completion. If applicable, such fees are detailed within the Special Conditions of Sale. Buyers are deemed to bid in full knowledge of this.
B
* Generally speaking Guide Prices are provided as an indication of each seller's minimum expectation, i.e. 'The Reserve'. They are not necessarily figures which a property will sell for and may change at any time prior to the auction. Virtually every property will be offered subject to a Reserve (a figure below which the Auctioneer cannot sell the property during the auction) which we expect will be set within the Guide Range or no more than 10% above a single figure Guide.
Submit an enquiry and someone will be in contact shortly.
By setting a proxy bid, the system will automatically bid on your behalf to maintain your position as the highest bidder, up to your proxy bid amount. If you are outbid, you will be notified via email so you can opt to increase your bid if you so choose.
If two of more users place identical bids, the bid that was placed first takes precedence, and this includes proxy bids.
Another bidder placed an automatic proxy bid greater or equal to the bid you have just placed. You will need to bid again to stand a chance of winning.