Moovd Online Property Auctions are delighted to offer to the market via Option A – Unconditional Online Auction, with a BUY IT NOW PRICE of £49,000 + Fees (£4,404 Inc VAT) this well presented, two-bedroom mid terrace property in Southmoor, on the outskirts of Stanley.
The accommodation is a perfect BTL and is currently tenanted at £450 PCM, yielding 11.02% on the advertised BUY IT NOW PRICE.
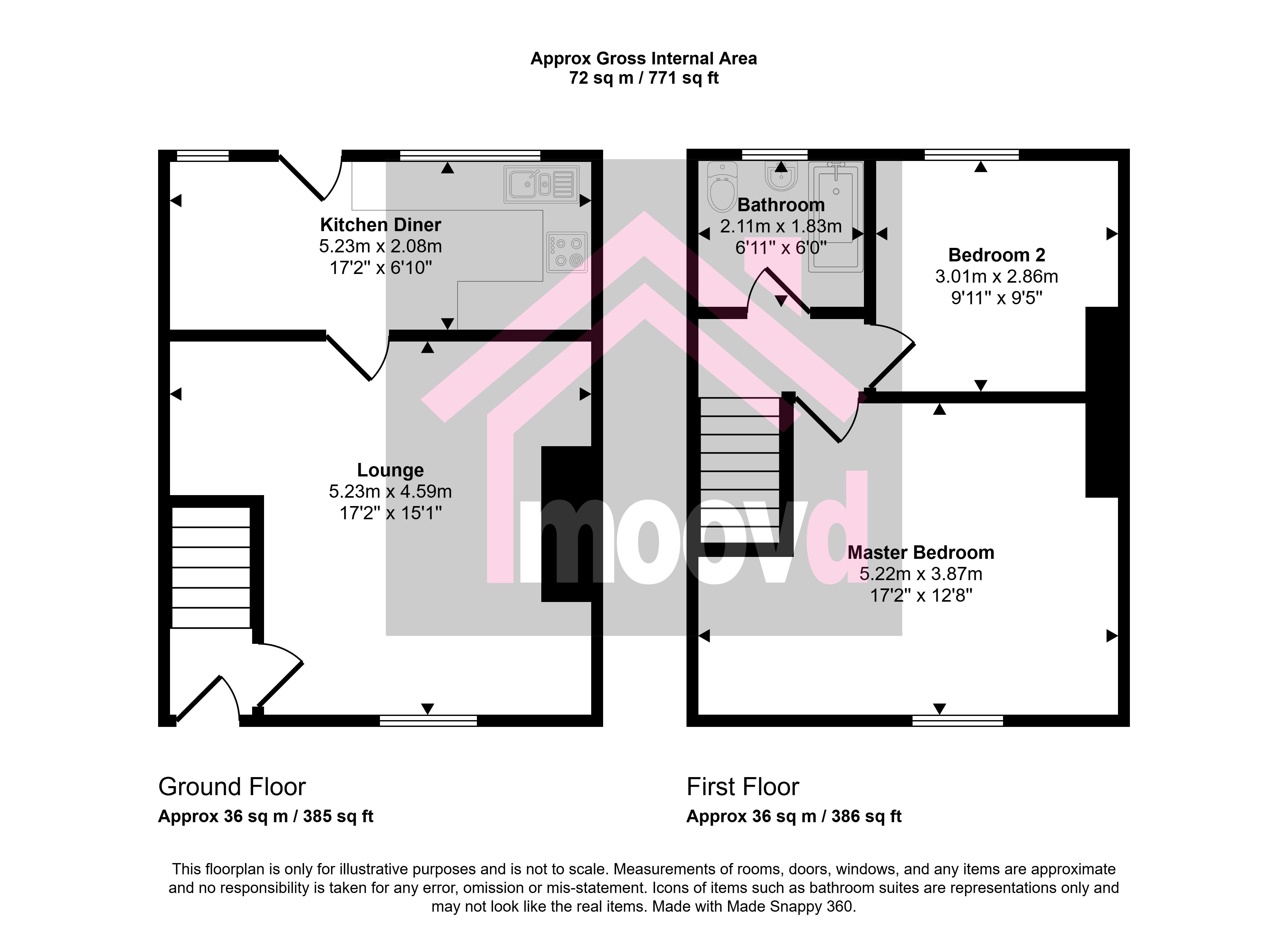
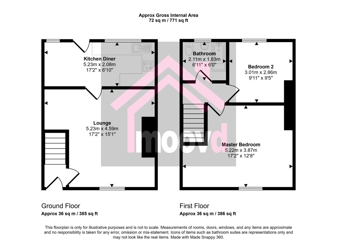
The layout briefly comprises entrance hallway with staircase to first floor and door into large lounge, into the rear of the property a smart fully fitted kitchen and door to rear yard. To the first floor are two double bedrooms and white family bathroom. Externally, to the front is a well-maintained garden and to the rear a yard, with gated access.
Situated in Southmoor on the outskirts of Stanley, this tidy accommodation is located within easy access of Consett, Durham and Newcastle and on excellent bus routes. With countryside walks, good schools, shops, restaurants and more on the doorstep, this fantastic property has it all!
With an attractive price we suggest an early viewing of this readymade investment. Viewings strictly by appointment only.
EPC rating D.
For more information, please contact Moovd directly.
Hallway - Door into hallway and lounge, staircase to first floor.
Lounge - 5.23 x 4.59 (17'1" x 15'0") - UPVc double glazed window to front, radiator.
Kitchen/ Diner - 5.23 x 2.00 (17'1" x 6'6") - Two UPVc double glazed windows to rear, door to rear yard, fitted with a range of base and wall units with contrasting work surfaces, stainless steel sink with drainer unit and mixer tap, integrated electric oven and hob, extractor fan, wall mounted boiler, plumbed for washing machine, splash back tiling.
First Floor Landing -
Bedroom 1 - 5.22 x 3.87 (17'1" x 12'8") - UPVc double glazed window to front, radiator.
Bedroom 2 - 3.01 x 2.86 (9'10" x 9'4") - UPVc double glazed window to rear, radiator.
Bathroom - UPVc double glazed and frosted window to rear, WC, pedestal hand basin, paneled bath with shower attachment, splash back tiling.
External - Front garden with paving and flower beds, rear yard with gated access.
Moovd may work in partnership with marketing agents on our Online Auction Lots and act as 'The Auctioneer', throughout the sale process.
Option A - Online Unconditional Auction:
The above property is offered for sale by Online Unconditional Auction (Traditional Auction). With this method of sale, both seller and buyer are required to complete the transaction, within the timeframe stated in the General Conditions and Special Conditions of Sale. It is Moovd’s policy that all buyers are without fail AML checked at point of Registration. The buyer is then required to make a NON- REFUNDABLE Administration Fee payment amounting to £3,000.00 Inc VAT (£2,500 + VAT) (This fee IS PAID in addition to the purchase price and will be chargeable and calculated towards stamp duty). A deposit payment amounting to 10% of the purchase price (or a minimum of £5,000) is also required from the successful buyer. The seller may charge additional fees payable upon completion. If applicable, such fees are detailed within the Special Conditions of Sale. Buyers are deemed to bid in full knowledge of this.
A
* Generally speaking Guide Prices are provided as an indication of each seller's minimum expectation, i.e. 'The Reserve'. They are not necessarily figures which a property will sell for and may change at any time prior to the auction. Virtually every property will be offered subject to a Reserve (a figure below which the Auctioneer cannot sell the property during the auction) which we expect will be set within the Guide Range or no more than 10% above a single figure Guide.
Submit an enquiry and someone will be in contact shortly.
By setting a proxy bid, the system will automatically bid on your behalf to maintain your position as the highest bidder, up to your proxy bid amount. If you are outbid, you will be notified via email so you can opt to increase your bid if you so choose.
If two of more users place identical bids, the bid that was placed first takes precedence, and this includes proxy bids.
Another bidder placed an automatic proxy bid greater or equal to the bid you have just placed. You will need to bid again to stand a chance of winning.