Moovd Online Property Auctions are delighted to offer For Sale via Option A – Unconditional Online Auction on a BUY IT NOW PRICE of £70,000 + Auction Fees (£5,700 Inc VAT) this deceptively large commercial unit on Beamish Street to the rear of Stanley High Street.
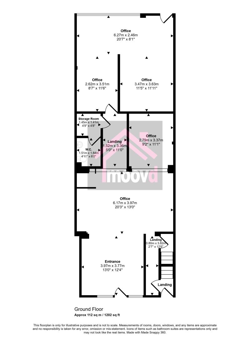
The premises on offer was previously used as the old Red Cross Charity Shop and is very generously sized internally with over 277 square metres of space, set over three floors, basement, ground floor and first floor with a huge amount of potential to develop the first floor into two self-contained flats.
The building briefly comprises: Commercial unit immediately from the street to a central area, two further spaces, kitchen, WC and rear store with access into the lane. To first floor via again a separate entrance and staircase is a large room with two WCs, kitchen, rear office and large office space to front. Additionally, there is a large basement with two further rooms.
The property is located on Beamish Street, behind the High Street, with immediate access to parking, close to Asda, Iceland and the Leisure Centre, with free parking immediately behind the building and would present itself as either a retail unit or potentially serviced office space, if the correct planning permission could be obtained.
Currently the property has a rateable value of £6,600.
Priced to sell, the property on offer would be a fantastic purchase and an internal viewing of the site is recommended. Viewings strictly by appointment only.
Basement - 6.06 x 3.88 (19'10" x 12'8") -
Ground Floor Shop - 3.97 x 3.77 (13'0" x 12'4") -
Middle Ground Floor Shop - 6.17 x 3.97 (20'2" x 13'0") -
Kitchen - 2.04 x 3.57 (6'8" x 11'8") -
Wc - 1.51 x 1.84 (4'11" x 6'0") -
Rear Ground Floor - 6.27 x 2.46 (20'6" x 8'0") -
Hall -
First Floor Office Front - 5.21 x 5.02 (17'1" x 16'5") -
First Floor Office - 4.01 x 11.5 (13'1" x 37'8") -
Wc - 1.46 x 1.171 (4'9" x 3'10") -
Wc -
Kitchen -
Rear Small Office - 2.03m x 1.37m (6'8" x 4'6" ) -
Moovd may work in partnership with marketing agents on our Online Auction Lots and act as 'The Auctioneer', throughout the sale process.
Option A - Online Unconditional Auction:
The above property is offered for sale by Online Unconditional Auction (Traditional auction). With this method of sale, both seller and buyer are required to complete the transaction, within the timeframe stated in the General Conditions and Special Conditions of Sale. It is Moovd’s policy that all buyers are without fail AML checked at point of Registration. The buyer is then required to make a NON- REFUNDABLE Administration Fee payment amounting to £3,000.00 Inc VAT (£2,500 + VAT) (This fee IS PAID in addition to the purchase price and will be chargeable and calculated towards stamp duty). A deposit payment amounting to 10% of the purchase price (or a minimum of £5,000) is also required from the successful buyer. The seller may charge additional fees payable upon completion. If applicable, such fees are detailed within the Special Conditions of Sale. Buyers are deemed to bid in full knowledge of this.
* Generally speaking Guide Prices are provided as an indication of each seller's minimum expectation, i.e. 'The Reserve'. They are not necessarily figures which a property will sell for and may change at any time prior to the auction. Virtually every property will be offered subject to a Reserve (a figure below which the Auctioneer cannot sell the property during the auction) which we expect will be set within the Guide Range or no more than 10% above a single figure Guide.
Submit an enquiry and someone will be in contact shortly.
By setting a proxy bid, the system will automatically bid on your behalf to maintain your position as the highest bidder, up to your proxy bid amount. If you are outbid, you will be notified via email so you can opt to increase your bid if you so choose.
If two of more users place identical bids, the bid that was placed first takes precedence, and this includes proxy bids.
Another bidder placed an automatic proxy bid greater or equal to the bid you have just placed. You will need to bid again to stand a chance of winning.