Moovd Online Property Auctions are delighted to offer For Sale via Option A - Unconditional Online Auction on the 10th July 2025 Birdbrook Tavern, Boreham Place, New England, Halstead, CO9 4BD.
A Freehold Public House that has ceased trading occupying a prominent main road position with substantial grounds extending to some three acres. The property is in need of refurbishment but offers an exciting opportunity for a variety of uses subject to the relevant planning permissions being granted.
The property is located on the A1017 connecting the counties of Cambridgeshire, Suffolk and Essex.
EPC rating C.
Buyer's Premium £2500 + VAT (£3,000 Inc VAT).
VAT
Figures quoted exclude VAT where chargeable.
For more information, please contact Moovd directly.
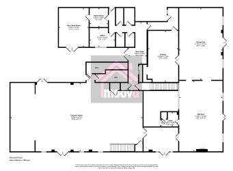
Entrance -
Bar Area - 10.02m x 6.16m (32'10" x 20'2") -
Lobby -
Dining Area - 10.21m x 6.13m (33'5" x 20'1") -
Kitchen - 7.25m x 4.28m (23'9" x 14'0") -
Rear Store -
Storage Cupboards -
Rear Office - 3.75m x 2.61m (12'3" x 8'6") -
Store Room - 2.65m x 2.63m (8'8" x 8'7") -
Rear Store Room - 5.47m x 4.23m (17'11" x 13'10") -
Function Room - 18.80m x 9.72m (61'8" x 31'10") -
Wcs -
Gallery Area - 8.72m x 4.89m (28'7" x 16'0") -
Hall -
Kitchen Diner - 5.22m x 3.08m (17'1" x 10'1") -
Bedroom 2/ Lounge - 3.31m x 2.92m (10'10" x 9'6") -
Bedroom 3 - 2.99m x 2.68m (9'9" x 8'9") -
Master Bedroom - 3.50m x 3.00m (11'5" x 9'10") -
Bathroom -
Bedroom 4 - 3.69m x 2.08m (12'1" x 6'9") -
Moovd may work in partnership with marketing agents on our Online Auction Lots and act as 'The Auctioneer', throughout the sale process.
Option A - Online Unconditional Auction:
The above property is offered for sale by Online Unconditional Auction (Traditional auction). With this method of sale, both seller and buyer are required to complete the transaction, within the timeframe stated in the General Conditions and Special Conditions of Sale. It is Moovd’s policy that all buyers are without fail AML checked at point of Registration. The buyer is then required to make a NON- REFUNDABLE Administration Fee payment amounting to £3,000.00 Inc VAT (£2,500 + VAT) (This fee IS PAID in addition to the purchase price and will be chargeable and calculated towards stamp duty). A deposit payment amounting to 10% of the purchase price (or a minimum of £5,000) is also required from the successful buyer. The seller may charge additional fees payable upon completion. If applicable, such fees are detailed within the Special Conditions of Sale. Buyers are deemed to bid in full knowledge of this.
* Generally speaking Guide Prices are provided as an indication of each seller's minimum expectation, i.e. 'The Reserve'. They are not necessarily figures which a property will sell for and may change at any time prior to the auction. Virtually every property will be offered subject to a Reserve (a figure below which the Auctioneer cannot sell the property during the auction) which we expect will be set within the Guide Range or no more than 10% above a single figure Guide.
Submit an enquiry and someone will be in contact shortly.
By setting a proxy bid, the system will automatically bid on your behalf to maintain your position as the highest bidder, up to your proxy bid amount. If you are outbid, you will be notified via email so you can opt to increase your bid if you so choose.
If two of more users place identical bids, the bid that was placed first takes precedence, and this includes proxy bids.
Another bidder placed an automatic proxy bid greater or equal to the bid you have just placed. You will need to bid again to stand a chance of winning.